#004 EFH Rheinfelden

| Objekt | EFH |
| Architektur | Arbeitsgemeinschaft mit Otto + Partner AG |
| Ort | Rheinfelden AG |
| Baujahr | 2008 - 2009 |
| Grundstückgrösse | 2000m² |
| Wohnfläche | 593m² |

Nord Ansicht

West Ansicht

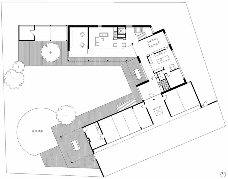
Erdgeschoss

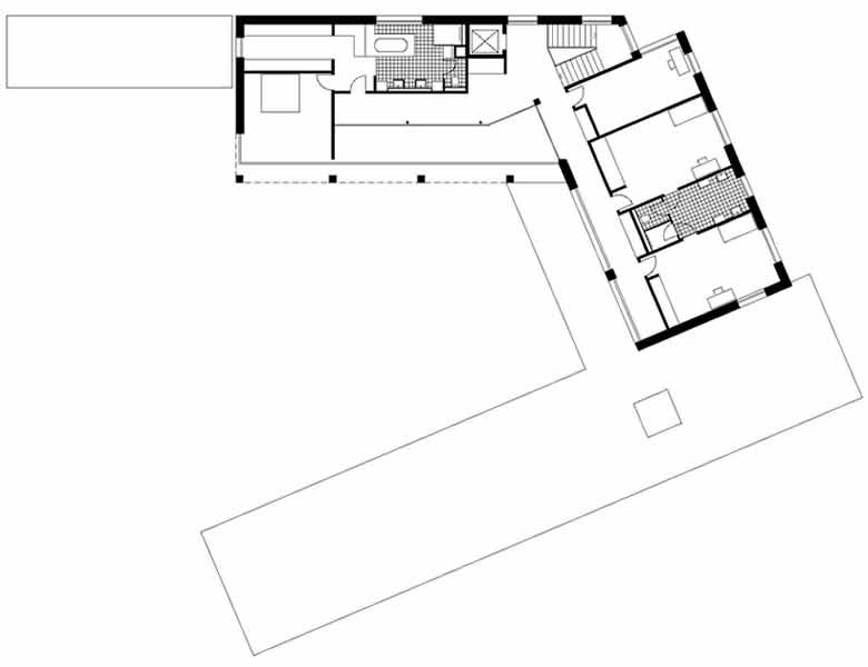
Obergeschoss

Schnitt
SELECT *, p.id as pid, pk.name as pkname, p.name as pname FROM projekt p, projekt_has_kategorie phk, projekt_kategorie pk WHERE p.id = phk.projekt_id AND pk.id = phk.kategorie_id AND p.id = '8' GROUP by p.id ORDER by p.id desc

| Objekt | EFH |
| Architektur | Arbeitsgemeinschaft mit Otto + Partner AG |
| Ort | Rheinfelden AG |
| Baujahr | 2008 - 2009 |
| Grundstückgrösse | 2000m² |
| Wohnfläche | 593m² |

Nord Ansicht

West Ansicht

Erdgeschoss

Obergeschoss

Schnitt