#014 Neubau EFH Rheinfelden

| Objekt | Neubau EFH |
| Ort | Rheinfelden AG |
| Baujahr | 2014 - 2015 |
| Grundstückgrösse | 792m² |
| Wohnfläche | 225m² |

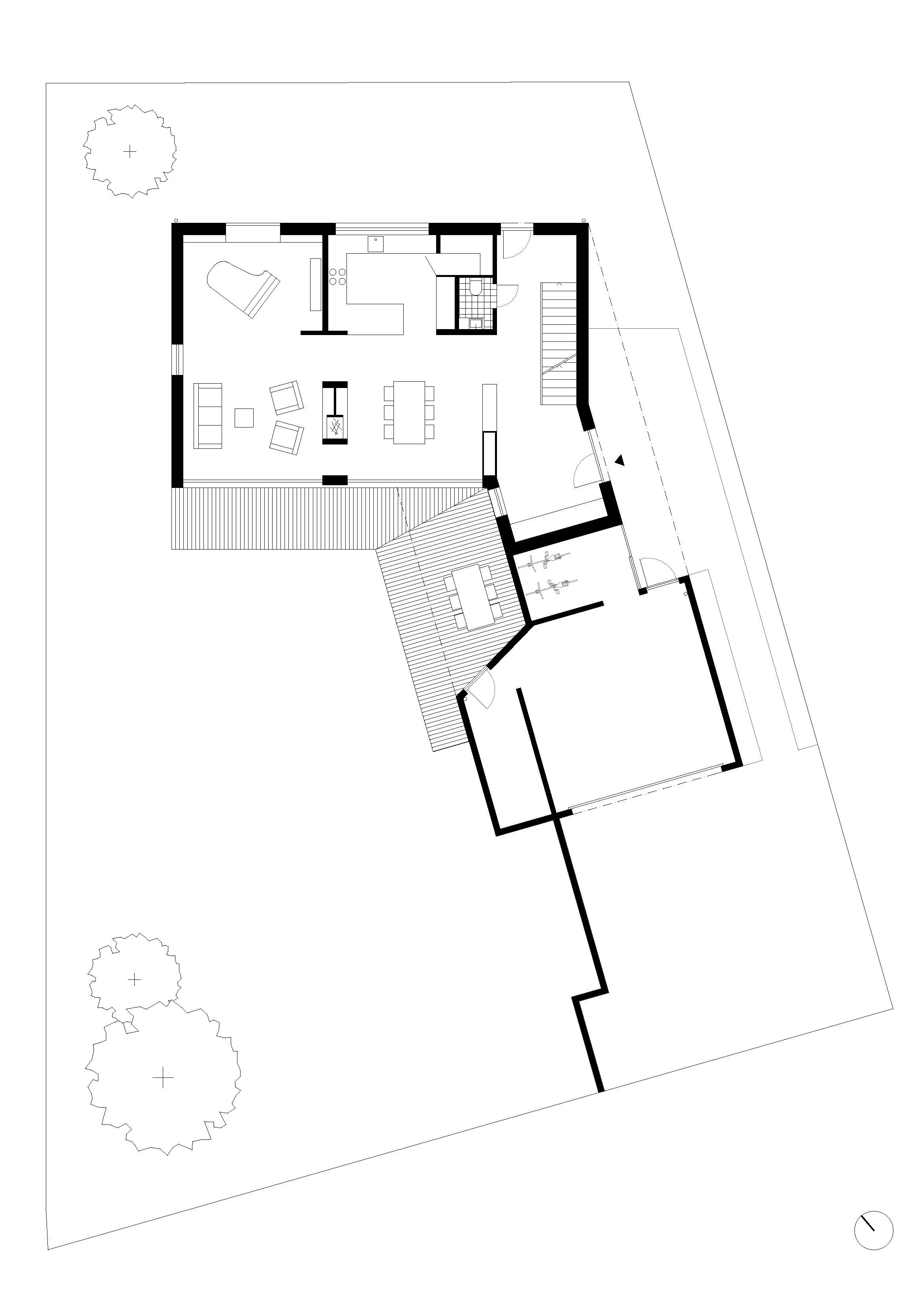
Erdgeschoss mit Umgebung
Obergeschoss
Schnitt

Fassade
SELECT *, p.id as pid, pk.name as pkname, p.name as pname FROM projekt p, projekt_has_kategorie phk, projekt_kategorie pk WHERE p.id = phk.projekt_id AND pk.id = phk.kategorie_id AND p.id = '18' GROUP by p.id ORDER by p.id desc

| Objekt | Neubau EFH |
| Ort | Rheinfelden AG |
| Baujahr | 2014 - 2015 |
| Grundstückgrösse | 792m² |
| Wohnfläche | 225m² |

Erdgeschoss mit Umgebung
Obergeschoss
Schnitt

Fassade