#012 Umbau EFH Rheinfelden

| Objekt | Umbau EFH |
| Ort | Rheinfelden AG |
| Baujahr | 2014 |
| Grundstückgrösse | 1000m² |
| Wohnfläche | 243m² |

Situation

Grundriss vorher

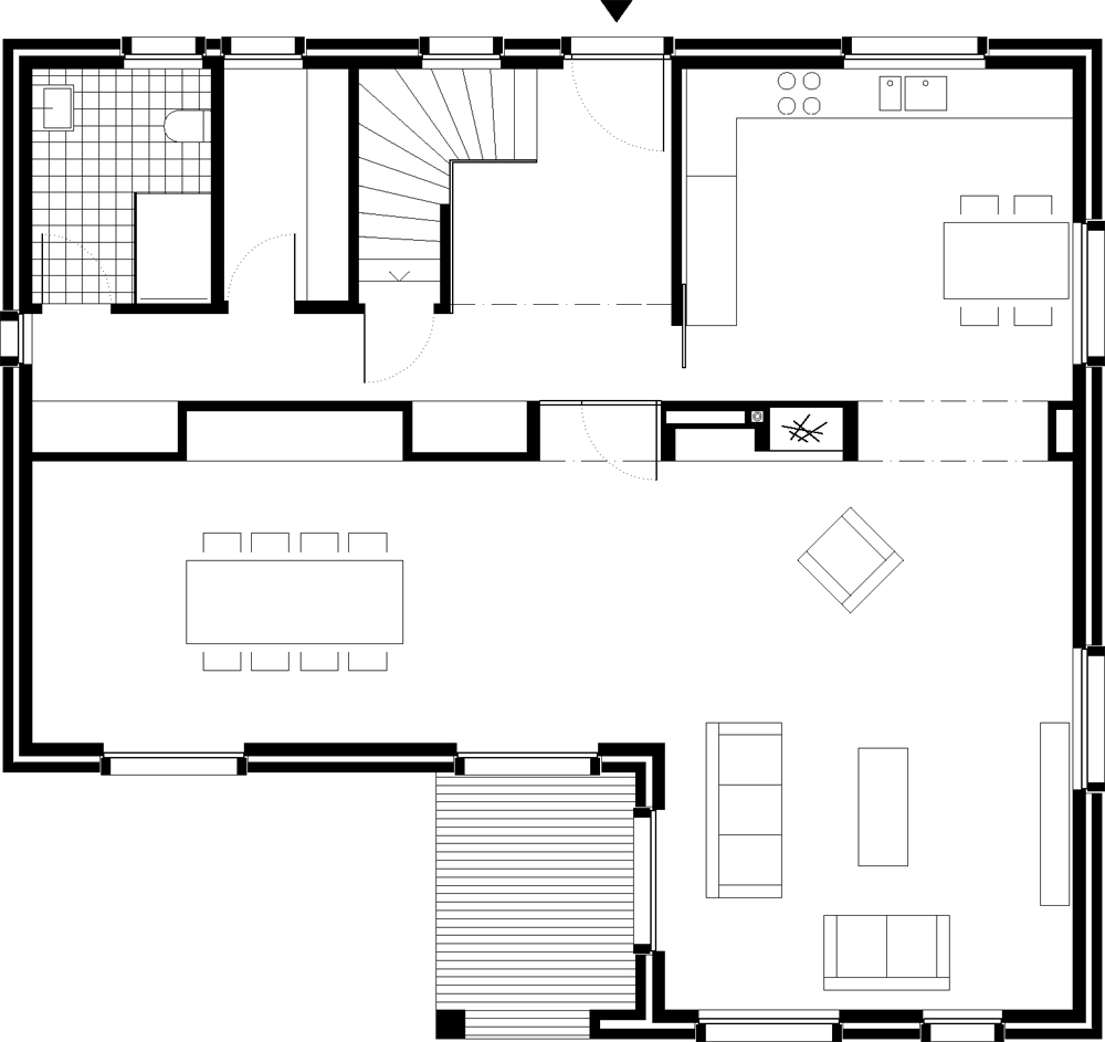
Grundriss nachher
SELECT *, p.id as pid, pk.name as pkname, p.name as pname FROM projekt p, projekt_has_kategorie phk, projekt_kategorie pk WHERE p.id = phk.projekt_id AND pk.id = phk.kategorie_id AND p.id = '16' GROUP by p.id ORDER by p.id desc

| Objekt | Umbau EFH |
| Ort | Rheinfelden AG |
| Baujahr | 2014 |
| Grundstückgrösse | 1000m² |
| Wohnfläche | 243m² |

Situation

Grundriss vorher

Grundriss nachher